
Our Rafael By The Sea Property and Resort Homes Baja are brought to you by the award-winning real estate company Playa De Oro Realty. With over 25 years of development experience in San Felipe, Mexico, we assure our residents will have a safe and secure community in which to relax and enjoy their Mexico living experience. We pride ourselves on putting quality into the resort home living and lifestyle.
Escape To The Beach With One of Our Baja Resort Homes!
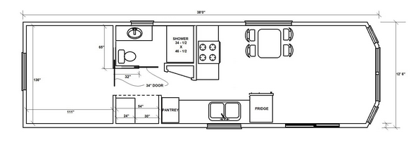
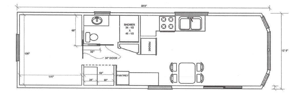
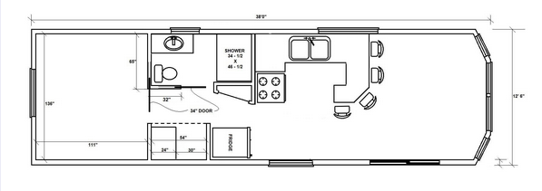
Our Resort Homes Baja are approximately 400 square foot, high-quality, eco-friendly tiny homes. Live in modern luxury with our one bedroom, one bath resort homes! Our resort homes include features such as:
- Wheelchair accessibility
- Large doors for the bathroom and master bedroom
- Extra-large bath with easy entry sliding glass doors
- Insulated egress windows in the bedroom
- Recessed Lighting
- Ceiling fans
- Beautiful features
- And more!
With a wide variety of upgrades, additions, and layouts it is easy to make one of our Resort Homes Baja everything you are looking for in your beachfront home. Our resort homes are move-in ready! Just bring your own furniture, pets, and friends/family to make your resort home a home!
Contact us to learn more about the available layouts and upgrades we have to offer.
Contact Us**Our initial units have already SOLD OUT. Our next offering is currently under construction and will be move-in ready very soon! Place your reservations now!**
Become one of the privileged few to make Rafael By The Sea your own!
With over 900 feet of beachfront property, most lots range from 2500 to 3500 square feet depending on the location and configuration of each unique lot space. Some lots have the option for expanded lot size with an additional per square foot lease payment. Contact us for more information about lot sizes and lease rates.
Rafael by the Sea is managed by a seasoned management company whose duties include but are not limited to:
- security
- maintenance
- community affairs
- lease payments
- and other concerns of the community.

City water, sewage, and electricity are available for all of our Resort Homes Baja at Rafael By The Sea.
“Contact us to reserve your lot at Rafael By The Sea!”
Contact UsAre you interested in making an income by renting your Resort Home Baja?

As a Resort Home Baja owner and resident of Rafael By The Sea, you have the opportunity to join our Resort Home Rental Program! Your resort home can be rented out by the night, week, or month. This is an excellent resource for those looking to maintain a part-time residence here in San Felipe. While you are away, your resort home pays for itself!
Join our Resort Home Rental Program and our management company will do all the work! Just notify the management company in advance when you are ready to return to your home away from home and our team will make sure your resort home is ready for you and just how you left it!
Contact us to learn more about this unique, income-driving opportunity!
Contact UsUnder Construction
Our Resort Homes Baja are built custom for you! During this time we work closely with the you, the buyer, to make sure the new resort home meets all of your wants and needs. To see more photos of the Rafael By The Sea development and the resort home building process please contact us.
Contact Us











